Helsinki

Kaartinkaupunki, Erottajankatu 9-11

Toimistotilat

Vapaat tilat

Vuokrattavana toimistotilaa kantakaupungista

Tarjoamme vuokralle Diana-puiston vierestä, arvokiinteistöstä sisäpihan puoleisesta rapusta 221,5 m²:n toimistotilan kiinteistön viidennestä kerroksesta. Muuttamaan pääset heti ja tarvittaessa tila on myös jaettavissa.

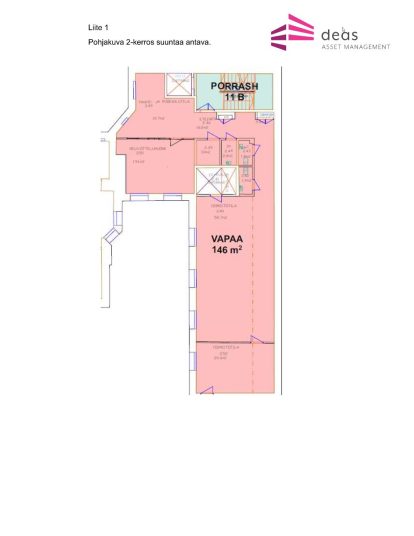
Vapaana on myös 146 m²:n ja 213 m²:n toimistotilat kiinteistön toisesta kerroksesta.

Pihatalon (B-talon) viidennestä kerroksesta on vapautunut siisti 139,5 m²:n toimistotilakokonaisuus keittiöllä ja sosiaalitiloilla. Muuttamaan pääset heti!

Lisäksi vapaana 44 m²:n toimistotila kiinteistön seitsemännestä kerroksesta. Tilassa on minikeittiö ja sosiaalitilat.

Kiinteistöön kuuluu kaksi porrasta, 1911 valmistunut historiallinen kadunvarsitalo (A) sekä 1986 sisäpihalle valmistunut toimistorakennus (B). Hissi on, sekä koneellinen ilmanvaihto ja tuloilman jäähdytys. Keskustan loistavat palvelut sekä julkiset liikenneyhteydet ovat kiinteistön välittömässä läheisyydessä.

Kiinteistön välittömässä läheisyydessä sijaitsee Erottajan Manalan parkkiluola.

Tervetuloa tutustumaan!

Sijainti

Ohita karttaupotus
Näytä reittiohjeet   Avaa Google Mapsissa

Erottajankatu 9-11, Helsinki

Metroasemalle
700 m

Raitiovaunu­pysäkille
50 m

Linja-autopysäkille
300 m

Juna-asemalle
750 m

Lentoasemalle
Alle 20 km

Kohteen tiedot

Pinta-ala 6 566 m²
Kerroksia 6
Tilat alk. 44 m²
Pysäköinti Saatavilla
Energialuokka F
Ympäristösertif. BREEAM In-Use Very Good

Lisätietoja

Pysäköinti

Oma autohalli, jossa on 27 autopaikkaa.

Kuvia

Lisätietoja kohteesta

Kimmo Korpela

Asset Manager
+358 50 5308 025

kimmo.korpela@fokusnordic.com

Mikonkatu 7, 5B
00100 Helsinki

Varaa näyttö

"*" näyttää pakolliset kentät