FPFF-kohde

Lakalaivan Toimistotalo I, Postitorvenkatu 16

Lisätietoja kiinteistöstä

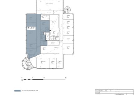
Toimisto, 154,5 m²

Lataa pohjakuva Lataa esite

Valoisa toimistotila 4. kerroksessa – 154,5 m²

Vuokrattavana siisti ja nykyaikainen toimistotila neljännestä kerroksesta. Tila soveltuu erinomaisesti yritykselle, joka arvostaa rauhallista työympäristöä ja toimivia tilaratkaisuja.

Tilakokonaisuuden pinta-ala on 154,5 m², ja siinä on keittiö sekä sosiaalitilat, jotka tukevat sujuvaa arjen työskentelyä ja henkilöstön viihtyvyyttä. Tilajärjestely mahdollistaa sekä tiimityöskentelyn että keskittymistä vaativan työn. Osa esillä olevista kuvista on virtuaalistailattuja, ja ne havainnollistavat tilan muunneltavuutta ja mahdollisia kalusteratkaisuja.

Toimitila vapautuu 1.7.2026, mikä antaa erinomaiset edellytykset muuton ja tilatarpeiden suunnittelulle hyvissä ajoin.

Sijainti

Ohita karttaupotus
Näytä reittiohjeet   Avaa Google Mapsissa

Postitorvenkatu 16, Tampere

Linja-autopysäkille
1 km

Juna-asemalle
Alle 4 km

Lentoasemalle
14 km

Tilan avaintiedot

Käyntiosoite Postitorvenkatu 16, Tampere
Pinta-ala 154,5 m²
Kerros 4
Henkilömäärä 10- hlöä

Kuvia

Lisätietoja kohteesta

Kirsi Väisänen

Senior Letting Manager
+358 50 5495 101

kirsi.vaisanen@fokusnordic.com

Mikonkatu 7, 5B
00100 Helsinki

Varaa näyttö

"*" näyttää pakolliset kentät