FPFF-kohde

Lylykoskentie 11

Lisätietoja kiinteistöstä

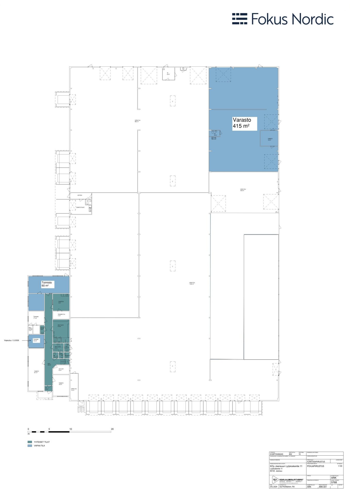
Varasto, 415 m²

Lataa pohjakuva Lataa esite

Tehokas ja korkea varastotila erinomaisella sijainnilla – Lylykoskentie 11, Joensuu

Vuokrattavana toimiva ja helposti saavutettava varastotila Joensuun Käpykankaan alueella. Kohde soveltuu erinomaisesti varastointiin, tuotantoon tai tilaa vievään toimintaan, jossa logistiikan sujuvuus ja hyvä saavutettavuus ovat avainasemassa.

Varastotilan vapaa korkeus on noin 6–7 metriä, mikä mahdollistaa tehokkaan tilankäytön myös korkeaa varastointia vaativissa tarpeissa. Kolme nosto-ovea takaavat vaivattoman lastauksen ja purun sekä sujuvan tavaraliikenteen eri kokoisille ajoneuvoille.

Tila on vapaa, joten toiminnan käynnistäminen onnistuu nopeasti.

Sijainti

Ohita karttaupotus
Näytä reittiohjeet   Avaa Google Mapsissa

Lylykoskentie 11, Joensuu

Linja-autopysäkille
1 km

Juna-asemalle
Alle 5 km

Lentoasemalle
9 km

Tilan avaintiedot

Käyntiosoite Lylykoskentie 11, Joensuu
Pinta-ala 415 m²

Kuvia

Lisätietoja kohteesta

Kirsi Väisänen

Senior Letting Manager
+358 50 5495 101

kirsi.vaisanen@fokusnordic.com

Mikonkatu 7, 5B
00100 Helsinki

Varaa näyttö

"*" näyttää pakolliset kentät