FPFF-kohde

Suokalliontie 9

Lisätietoja kiinteistöstä

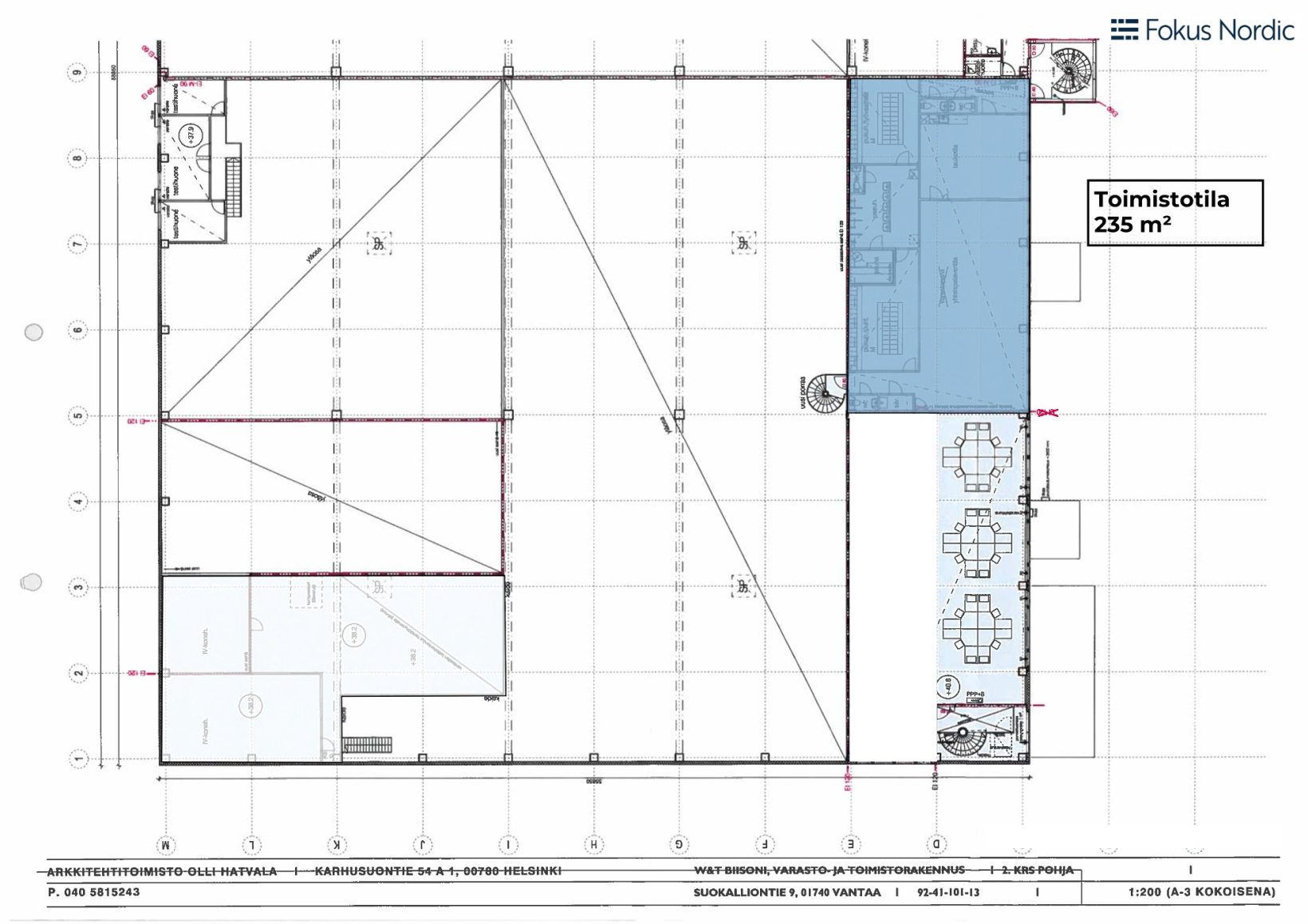
Toimisto, 235 m²

Lataa pohjakuva Lataa esite

Toimistotila 235 m² Aviapoliksessa – siisti ja viihtyisä kokonaisuus

Vuokrattavana 235 m²:n toimistotila Vantaalla osoitteessa Suokalliontie 9, Aviapoliksen yritysalueella. Toisen kerroksen erittäin siisti avotoimisto tarjoaa toimivan ja viihtyisän työympäristön monenlaiseen toimistotyöhön.

Tilassa on keittiö, sosiaalitilat sekä sauna, jotka lisäävät käyttömukavuutta ja tukevat sujuvaa työarkea. Jäähdytys varmistaa miellyttävät työskentelyolosuhteet ympäri vuoden.

Tilakokonaisuutta on mahdollista kasvattaa tarpeen mukaan, mikä tarjoaa joustavuutta yrityksen muuttuviin tilatarpeisiin.

Tila on vapaa ja käyttöönotettavissa joustavasti.

Kysy lisätietoja ja sovi esittely!

Sijainti

Ohita karttaupotus
Näytä reittiohjeet   Avaa Google Mapsissa

Suokalliontie 9, Vantaa

Linja-autopysäkille
900 m

Juna-asemalle
Alle 4 km

Lentoasemalle
6 km

Tilan avaintiedot

Käyntiosoite Suokalliontie 9, Vantaa
Pinta-ala 235 m²
Kerros 2
Henkilömäärä 10 hlöä-

Kuvia

Lisätietoja kohteesta

Kirsi Väisänen

Senior Letting Manager
+358 50 5495 101

kirsi.vaisanen@fokusnordic.com

Mikonkatu 7, 5B
00100 Helsinki

Varaa näyttö

"*" näyttää pakolliset kentät