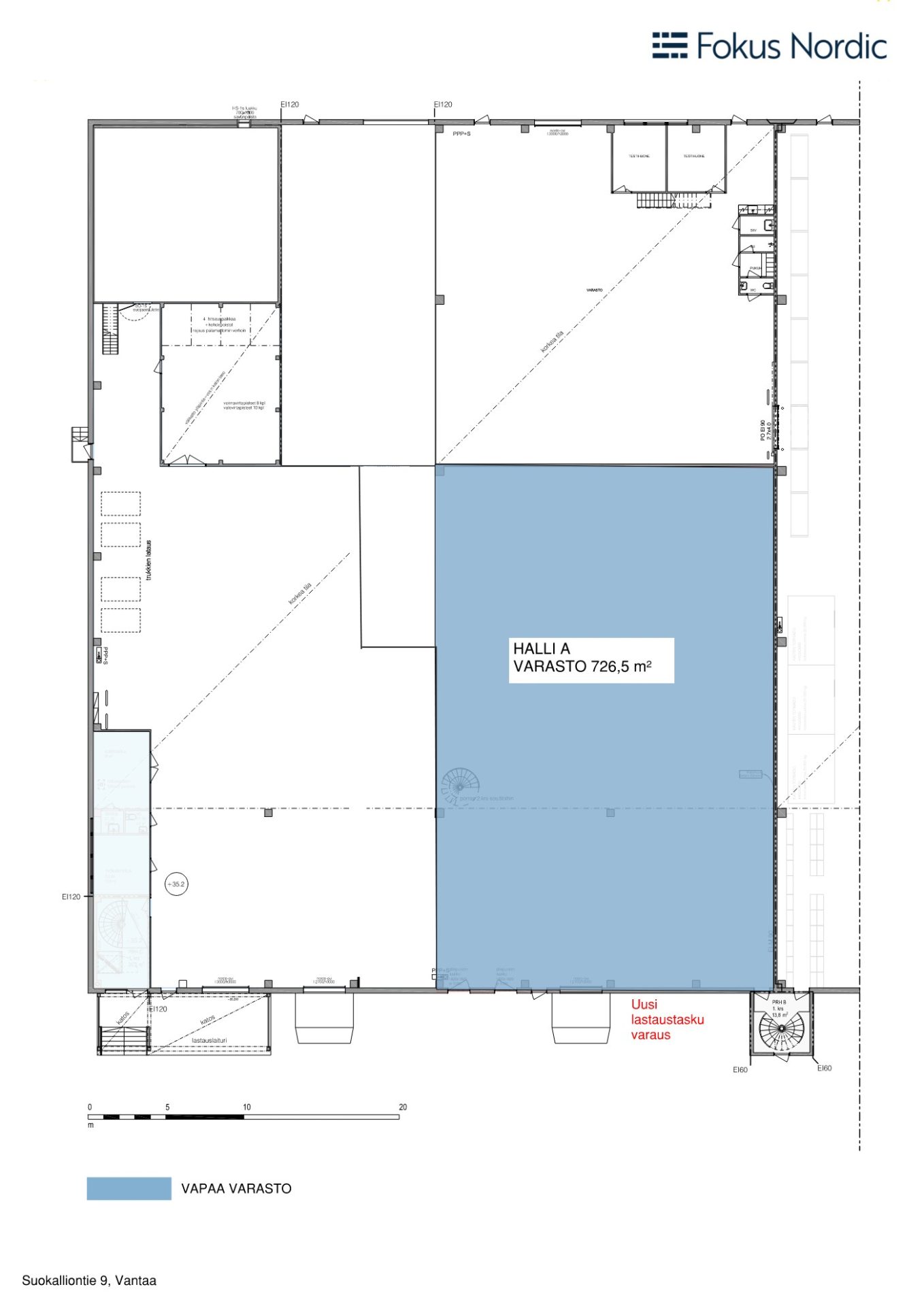
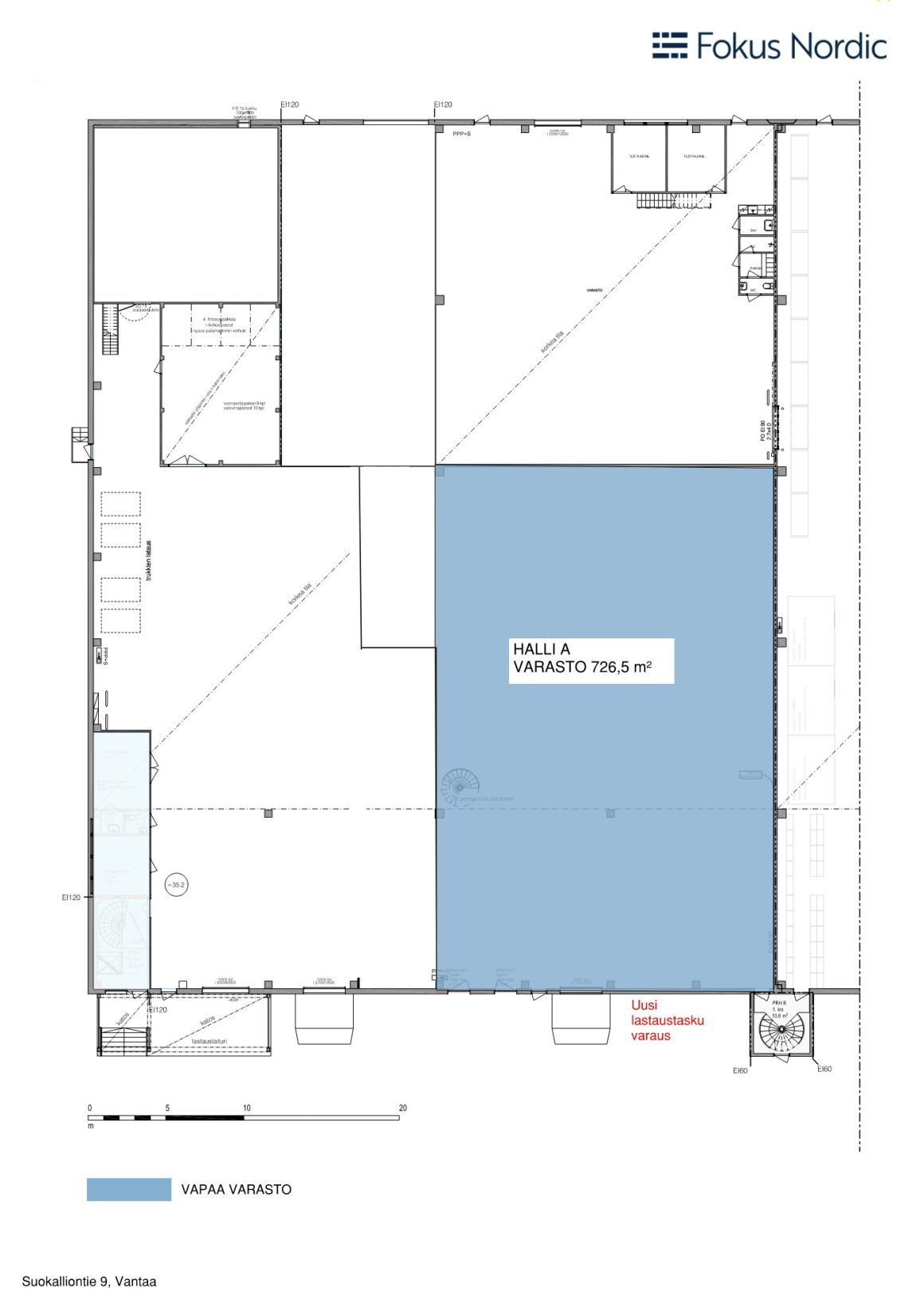
Varastotila 726,5 m² Aviapoliksessa – lastaustaskulla
Vuokrattavana 726,5 m²:n varastotila Vantaalla osoitteessa Suokalliontie 9, Aviapoliksen logistisesti erinomaisella alueella. Tila soveltuu hyvin esimerkiksi varastointi- ja logistiikkakäyttöön.
Varastotilassa on lastaustasku, ja lisäksi on mahdollisuus rakentaa toinen lastaustasku tarpeen mukaan. Tilan vapaa korkeus on noin 9 metriä ja lattiakantavuus noin 4 000 kg/m², mikä mahdollistaa tehokkaan varastoinnin.
Tilassa ei ole sisäänajoyhteyttä eikä lattiakaivoja, mikä on hyvä huomioida käyttötarkoitusta suunniteltaessa.
Tila on vapaa ja käyttöönotettavissa joustavasti.
Kysy lisätietoja ja sovi esittely!